"Wspólnie musimy stworzyć różnorodne środowisko, które wspiera rozwój wszystkich mieszkańców, a nawet gości"
Usłyszeć to od doświadczonego dewelopera — to wiele znaczy. Właśnie od tej inspirującej nas formuły rozpoczęliśmy projekt.
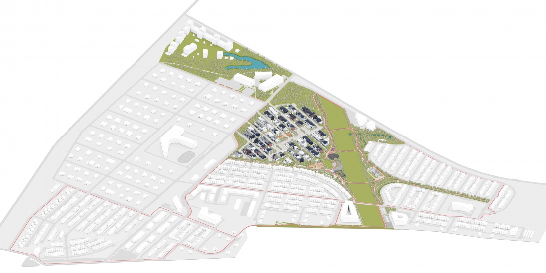
Wszystkie etapy projektu — od koncepcji planu zagospodarowania po detale fasad domów — są podporządkowane rozwiązaniu trudnego i istotnego zadania: stworzeniu środowiska mieszkaniowego, które pod względem różnorodności mógłby równać się historycznym miastom.




























